New Homes in Stoke Golding by Owl Homes

The Heather - Plot 17

3-bedroom home

£385,000

Open 10am - 5pm, 7 days a week

01455 368 899 oakwood@owlhomes.co.uk
JUST ONE HOME AVAILABLE

Act fast to avoid disappointment. Just one of this type available!

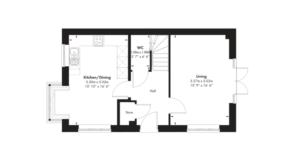
At 968 sq. ft., this excellent 3-bedroom detached home features a single garage plus two car parking spaces. In the quietest area of the Oakwood development, the Heather plot 17, sits next to the green open space making this one of the most desirable plots on the development.


Inside, the home is well-presented with a bright living room opening up onto the rear garden through French doors, and a kitchen/dining room with a feature bay window that gives you even more functional living space. Upstairs, there are 3 good-sized bedrooms and two bathrooms including an en-suite to bedroom 1. 

JUST ONE HOME AVAILABLE

Act fast to avoid disappointment. Just one of this type available!

Oakwood, Stoke Golding Floorplans

KITCHEN AND UTILITIES
  • French doors onto rear garden
  • Symphony kitchen with square edge worktops
  • Bosch integrated single oven
  • Bosch ceramic hob
  • Ideal boiler
BEDROOMS
  • USB sockets to master suite and kitchen
  • Slimline TV point to the master suite
BATHROOMS, EN SUITES AND CLOAKROOMS
  • Vent Axia mechanical extract ventilation
  • Roca sanitaryware
SECURITY & PEACE OF MIND
  • Carbon monoxide alarm with battery back up
  • Smoke detector with battery back up
  • Heat detector alarm with battery back up
  • 10 year NHBC warranty

Enquire about Plot 17 - Oakwood, Stoke Golding

I'm happy to receive future updates from Owl Homes